是大华集团带着深耕嘉定的决心,首入嘉定的第一子,也是大华城墅专家秉承着大华城墅迭新的
打造的第五代梧桐系城墅作品,旨在赋新大华高端城墅版图,迭新嘉定墅居享受,开篇一座嘉定城的新传奇。大华梧桐樾售楼处电话:✔️


【大华·梧桐樾】因地制宜利用天然河道精心布局。项目被新开河、苏州河双河流环绕,静谧水岸带来天然诗意与自然气息,大华梧桐樾售楼处电话:✔️丰盛的滨河景观与建筑融为一体,还生活以最自然灵动的本真。

大华梧桐樾售楼处电话:✔️【大华·梧桐樾】在社区景观的打造上,将大华城墅九制、墅居六艺的法则融入其中,营造了“门、街、坊、巷、院”五重空间序列、匠筑“春、夏、秋、冬”四季主题园境。大华梧桐樾售楼处电话:✔️


大华梧桐樾售楼处电话:✔️以“鲲鹏乐园”主题儿童乐园、鲲鹏书院、老人颐乐空间、多元艺术花园、约760m“汽车文化”主题跑道、森林漫步道等共享场域为居者构筑一个有温度的社区。大华梧桐樾售楼处电话:✔️

大华梧桐樾售楼处电话:✔️建筑采用现代美学立面,简约潮流,彰显城市精英的风范。窗棱格构的设计别具一格,打破了室内外界限的同时,带来充裕的采光和更好的景观视野。大华梧桐樾售楼处电话:✔️
社区内打造多重绿化体系、让四季皆有景可赏的同时,丰富运动空间、营造亲近自然的健康生活,给业主带来归家的温馨感。大华梧桐樾售楼处电话:✔️

大华梧桐樾售楼处电话:✔️【大华·梧桐樾】由“城市别墅专家”大华集团匠心雕琢,建筑面积约84-150㎡高层及叠加,精装交付,楼盘整体均价约411166元/㎡!总价约316万起!大华梧桐樾售楼处电话:✔️

大华梧桐樾售楼处电话:✔️项目以高层产品享受墅级品质,诠释虹桥高阶住宅风范。墅质高层大面宽、多飘窗、全明通透格局。所有房源全部装修交付,带来兼具功能与高尔夫视野的高舒适度空间,同时满足不同家庭的居住需求。大华梧桐樾售楼处电话:✔️


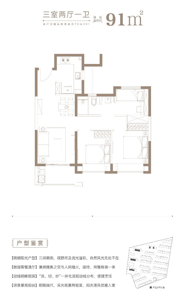
大华梧桐樾售楼处电话:✔️户型解析:三开间朝南+双朝南卧室带飘窗+动静分离+卫生间干湿分离,这样的三房设计,对于上海首套置业购房者来说,非常友好,未来想要做置换,也比较容易出手。
大华梧桐樾售楼处电话:✔️空间的设计省去了多余的过道,餐客厅一体,三房户型,可以满足新婚家庭到三口之家的升级,还能拥有一间独立书房,后期配置榻榻米,也可灵活用作客房,功能性非常完备。
室内采光和通风都相当出彩;每一间卧室都配了飘窗,拓宽景观视野,提升实际使用面积;卫生间干湿分离,大幅提升居住舒适度。


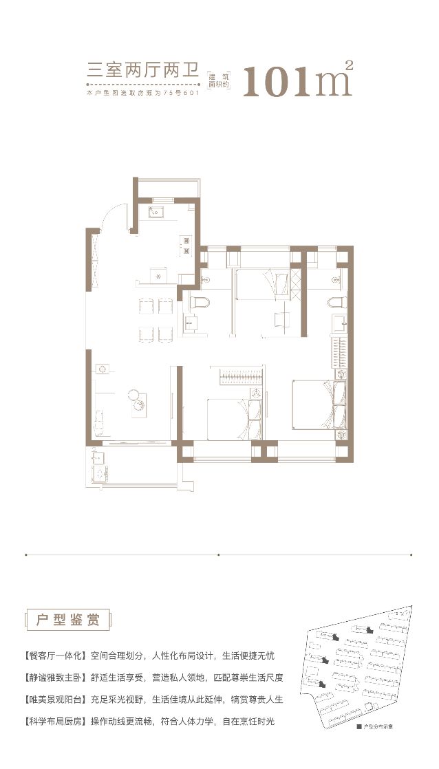
户型解析:三开间朝南+主卧套房设计+动静分离+全卧室带飘窗,采光优秀;厨房预留大尺度冰箱位;大华梧桐樾售楼处电话:✔️双卫设计,没有了“早高峰”的烦恼;主卧套房,尊享私密和奢阔尺度。舒适度和尺度感兼具,非常匹配精英家庭的生活追求!
大华梧桐樾售楼处电话:✔️户型解析:低密叠加自带一方轩阔地下室、自然园境、阳光露台等,有天有地、演绎一层一境界的诗意生活,让生活与自然相融,让房子从居住的容器转变为美好生活的载体。大华梧桐樾售楼处电话:✔️
大华梧桐樾售楼处电话:✔️说到安亭,不得不提上海国际汽车城产城融合示范区。这里以产赋能,带动整个板块的能级提升、经济提升及人口结构优化,成为高精尖人才炙手可热的置业新高地。大华梧桐樾售楼处电话:✔️

【大华·梧桐樾】大华梧桐樾售楼处电话:✔️占位虹桥北上海国际汽车城核心区,占位板块内难得一见的大规模开发地块,坐拥不可多得的城市别墅集群,距离主城更近,区位土地价值不言而喻,未来更具竞争力。大华梧桐樾售楼处电话:✔️

轨道交通方面:作为上海的“西门户”,20年以来,不论是对于产业的发展,亦或是对于人才的导入,安亭的繁荣富强,肯定离不开轨交的支撑。
项目距离11号线km,不算真正意义上的轨交房。轨交14号线横亘安亭境内的规划建议,也已提上日程。

对外,安亭北站与安亭西站的两座高铁枢纽,快速抵达上海虹桥与上海火车站,做到“融苏接通”。大华梧桐樾售楼处电话:✔️

大华梧桐樾售楼处电话:✔️商业配套方面:项目附近有11号上海汽车城站沿街商业、嘉实广场、三德广场、财富广场、嘉亭荟城市生活广场等大型商业广场,尽享璀璨城市生活;大华梧桐樾售楼处电话:✔️

大华梧桐樾售楼处电话:✔️教育资源方面:项目旁边拥有涵盖3-16岁的全龄化的教育配套,可以满足小孩的教学需求:东方瑞仕幼儿园、汇爱园托幼中心、三之三幼儿园等,九年制华东师范大附属双语学校、同济大学附属实验中小学等!大华梧桐樾售楼处电话:✔️
大华梧桐樾售楼处电话:✔️医疗资源方面:项目周边有完善的医疗配套体系,有二级综合性安亭医院,三级甲等综合性医院东方肝胆医院等大型医院,能够为家人提供全方位的健康保障。大华梧桐樾售楼处电话:✔️

大华梧桐樾售楼处电话:✔️生态休闲方面:项目周边有约12万方奥林匹克公园、约120万㎡颖奕高尔夫球场、约77万方的上海汽车博览公园、中央绿轴滨江公园、大华梧桐樾售楼处电话:✔️波恩风情音乐谷公园以及掌形湖等,整个绿化面积将近达到约300万㎡,完全可谓是理想的自然栖居地,真正的享受到如森林秘境般的生活住区。大华梧桐樾售楼处电话:✔️

大华梧桐樾售楼处电线日,上海土地市场又要迎来一场硬仗——2025年第八批次集中土拍。6幅地块散落在徐汇、静安、杨浦、松江、徐汇、宝山,总起价185亿,看似平静的数字背后,是一场围绕“核心资产”的无声角逐。
这六幅地块中,既有俯瞰黄浦江的滨江绝版宅地,也有苏河湾畔的商住综合体,更有高铁上盖与低密水岸住区。谁将在本轮角逐中脱颖而出?

地块指标显示,出让面积约2万方,容积率仅1.5,计容建面约3万方,起始总价40.59亿元,起始楼板价高达13.5万元/㎡——刷新上海非风貌宅地的楼面起价纪录。

区位是它最大的底气。地块位于西岸金融城核心段,与“顶豪标杆”云锦东方为邻,紧邻11号线云锦路站,真正“地铁+滨江”双加持。1公里内覆盖跑道公园、西岸美术馆、油罐艺术中心等优质公共空间,龙华会、西岸凤巢等商业环伺,区域成熟度与文化浓度双高。

市场方面,云锦东方前期售价已突破16万元/㎡,与本项目13.5万元/㎡的起始楼板价之间,仍留有利润想象。
作为徐汇滨江近年来罕见的纯住宅出让,加上西岸金融城产业人口持续导入,这幅地块极有可能成为房企争夺的“封神之战”。
二、静安区C070102单元32-04地块及32-08地块地下空间:总价门槛最高的“综合体巨无霸”
这幅由两个子地块组成的商住综合用地,总建面约9.5万方,住宅占比73%,起始总价71亿元,起始楼板价约7.47万元/㎡——是本批次总价最高的地块,也注定只有实力房企能够入局。
地块位于苏河湾艺术文化集聚带,与华侨城苏河湾、中粮天悦壹号等顶豪为邻,零距离苏河湾万象天地、静安大悦城两大商业体,南向俯瞰约200米苏州河景。文体用地占比27%,需结合“艺术苏河”规划,引入文艺展演、美术展览等业态,考验开发商的运营能力。

市场方面,周边近年开盘新房受此前限价影响,均价普遍在13万–14万元/㎡之间。而品质较好的滨水次新房挂牌价更高,如苏河湾中心润府约17.5万元/㎡,中粮天悦壹号约19.5万元/㎡,临苏州河的华侨城苏河湾均价更达23.5万元/㎡左右。

作为苏河湾核心区最后的大体量综合用地,它既承载高端住宅预期,也肩负区域文化商业升级使命。能否延续苏河湾高端市场的热度,将成为本轮土拍的一大看点。
地块体量不大,建面约3.7万方,起始总价22.81亿元,起始楼板价6.1万元/㎡,属于典型的“内中环稀缺补仓”。

区位优势集中在“交通+教育”:距离12号线米,北侧紧贴上师大附属杨浦滨江实验小学,真正“地铁+学区”双配置。周边宝龙旭辉广场、杨浦公园、沪东工人文化宫等配套成熟,属于杨浦滨江北延伸段的生活便利区。

目前杨浦滨江南段新房价格已站稳11万+,而本幅地块6.1万元/㎡的起始价留有空间。加上区域城市更新不断推进,预计将吸引专注上海内城更新的房企关注。
据悉,中国铁建旗下中铁房地产集团华东有限公司已发布该地块相关招标信息,预计总投资约49.57亿元,建安投资约7.15亿元。
徐汇区XHPO-0001单元D7D-1、D7C-2地块及D7C-1公共绿地、规划协领路部分地下空间:“三轨交汇”的未来枢纽
这是一幅典型的地铁上盖综合体,由住宅与商办两个子地块组成,总建面约9.6万方,起始总价26.51亿元,起始楼板价约2.77万元/㎡。

最大亮点是交通能级:15号线号线、机场联络线号线分钟直达虹桥、浦东两大机场。商业占比高,且须100%自持,考验开发商运营能力。

作为徐汇南拓的关键节点,华泾正迎来“华之门”TOD综合体、龙华华泾天街等商业升级。这幅地块能否借势轨交红利,成为南部新兴居住板块的代表,值得关注。
作为宝山高铁站二期地块,本次出让包括一幅住宅与一宗商业上盖,总建面约12万方,起始总价17.51亿元,起始楼板价约1.46万元/㎡。
住宅部分北邻河道、西接绿地,生态属性突出;商业部分为高铁上盖,须100%自持,要求与一期同步设计施工,考验整体开发协同能力。

尽管当前周边能级仍在提升中,但随着宝山高铁站建成,未来将形成集高铁、地铁、商业于一体的北部城市副中心,具备长线价值。

市场方面,2024年12月30日,金茂联合宝冶及杨行城建以31.16亿元摘得同单元13A-01、02aA-04地块,楼面价9058元/㎡。项目案名为“金茂棠前”,今年5月首开均价约4.9万元/㎡,目前三期新品均价5.385万元/㎡。
六、松江区SJC10010单元14-01号地块:新城里的“容积率1.2”选项
地块容积率仅1.2,建面约3万方,起始总价6.56亿元,起始楼板价2.15万元/㎡。
地块周边水系环绕,紧邻五龙湖生态商务区,距松江万达广场约1公里,属于松江新城中生态环境与便利性兼备的低密住区。

适合打造洋房或叠院类产品,面向松江本地改善及高校教师、G60人才等客群,预计将吸引专注低密产品的房企参与。

市场方面,2025年5月9日,中国铁建在上海第四轮土拍中以24.7亿元竞得松江区SJC10006单元C03A-04号地块,溢价率20.42%,成交楼面价约25288元/㎡。项目案名为“中国铁建·西派云间”,近日首批房源取证,均价约5.4万元/㎡。
从六大地块的能级、稀缺性与市场热度来看,徐汇滨江宅地最有可能成为本轮“地王”。
核心逻辑在于:其一,地段无可复制——西岸核心区+地铁口+滨江资源,三重稀缺属性叠加;其二,价格倒挂明确——周边二手房价格已突破16万/㎡,与13.5万元/㎡的起始楼板价形成安全垫;其三,产品形态纯粹——1.5容积率+纯住宅属性,利于打造高端产品;其四,市场饥渴度高——徐汇滨江已长期断供,高净值客群积累充足。
静安苏河湾地块虽总价最高,但商办自持与文体配建拉高开发门槛,可能抑制溢价空间;其余地块或因能级、或因属性限制,难以冲击头把交椅。